Italiano
English
98.000 €

Villetta con 1197 mq di spazio esterno

Villa in vendita • Casteldaccia - CONTRADA CAVALLARO, SNC
Casteldaccia - Contrada Cavallaro, Viale degli Ulivi, a solo 1 km dal paese e a 2 km dallo svincolo autostradale, villetta singola su 1197 mq di spazio esterno, con doppio ingresso carrabile di cui uno su strada privata, in parte adibito a posteggio ed in parte coltivato con alberi di ulivo e aiuole con vari punti d'acqua per facilitare l'irrigazione.
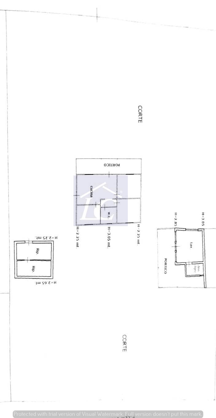
L'immobile è composto da un corpo principale prefabbricato in legno ricoperto con pannelli in fibre di cemento, su unico livello, di 52 mq composto da ingresso da portico su cucina - soggiorno, due camere matrimoniali, bagno con doccia, ampio vano dispensa, con scaldacqua elettrico, infissi alluminio e vetro semplice e climatizzatore (costruzione 1994) e una depandance di 25 mq composta da ingresso da portico su camera matrimoniale e bagno (Costruzione 2024) con infissi in alluminio e vetro camera.
A completare l'immobile una doccia esterna, un magazzino di 24 mq circa composto da 2 vani e una riserva idrica di 40 mila lt.
Ideale per uso villeggiatura.


Caratteristiche principali
Codice
CV/92
Città
Casteldaccia
Categoria
Villa
Prezzo
98.000 €
Locali
4
Camere
3
Bagni
2
Mq
80
Mq Giardino
1197
Classe energetica
E
Stato Immobile
Ottimo
Grado
Medio
Posizione
Collina
Orientamento
Nord Ovest Sud Est
Lati Liberi
4
Giardino
Privato
Tipo Soggiorno
Soggiorno
Tipo Cucina
A Vista
Acqua Calda
Autonoma
Raffrescamento
Split
Infissi
Alluminio

Accessori: Aria Condizionata, Ripostiglio

Mappa
CONTRADA CAVALLARO SNC, Casteldaccia (PA)
Video
Condividi su
Cookie preference