Italiano
English
110.000 €

Appartamento ristrutturato

Appartamento in vendita • Altavilla Milicia - VIA ROMA, SNC
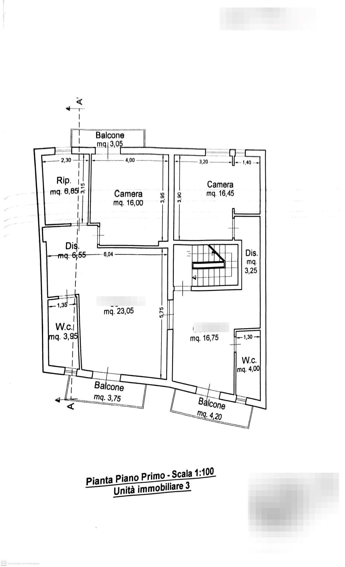
Altavilla Milicia - Via Roma - In una delle due arterie principali del paese, appartamento di 122 mq commerciali posto al piano primo s/a di una palazzina di 3 elevazioni fuori terra con sole 4 unità abitative.
L'immobile, interamente ristrutturato nel 2024, è composto da ingresso su soggiorno, cucina abitabile (entrambi gli ambienti hanno apertura su balconi prospetto principale), bagno con box doccia, doppio servizio, ripostiglio, due camere da letto matrimoniali di cui una con portafinestra su balcone con vista panoramica.
E' possibile, tramite professionisti del settore, presso in nostri uffici, effettuare una consulenza finanziaria, assolutamente gratuita e non vincolante, al fine di definire preventivamente la finanziabilità soggettiva.
Per ulteriori informazioni e/o concordare un appuntamento potete contattarci allo 091915142 anche tramite Whatsapp.
Caratteristiche principali
Codice
AV/85
Città
Altavilla Milicia
Categoria
Appartamento
Prezzo
110.000 €
Locali
3
Camere
2
Bagni
2
Mq
122
Balconi
3
Classe energetica
F
Stato Immobile
Ottimo
Grado
Medio
Posizione
Centro
Panorama
Vista Aperta
Orientamento
Ovest Est
Lati Liberi
2
Tipo Soggiorno
Soggiorno
Tipo Cucina
Abitabile
Riscaldamento
No
Acqua Calda
Autonoma
Infissi
Alluminio Doppio Vetro
Serramenti
Nuovo
Persiana
Tapparella PVC

Accessori: Ripostiglio

Mappa
VIA ROMA SNC, Altavilla Milicia (PA)
Video
Condividi su
Cookie preference