Italiano
English
88.000 €

Lotto con 2 unità abitative

Villa in vendita • Altavilla Milicia - Piano Madonna, 0
Altavilla Milicia - Contrada Piano Madonna - a circa 2 km dalla strada statale 113, in contesto di silenzioso e tranquillo, ma non isolato, lotto di terreno, di 700 mq, con 2 unità abitative interamente da ristrutturare.
Attualmente le unità sono così composte:
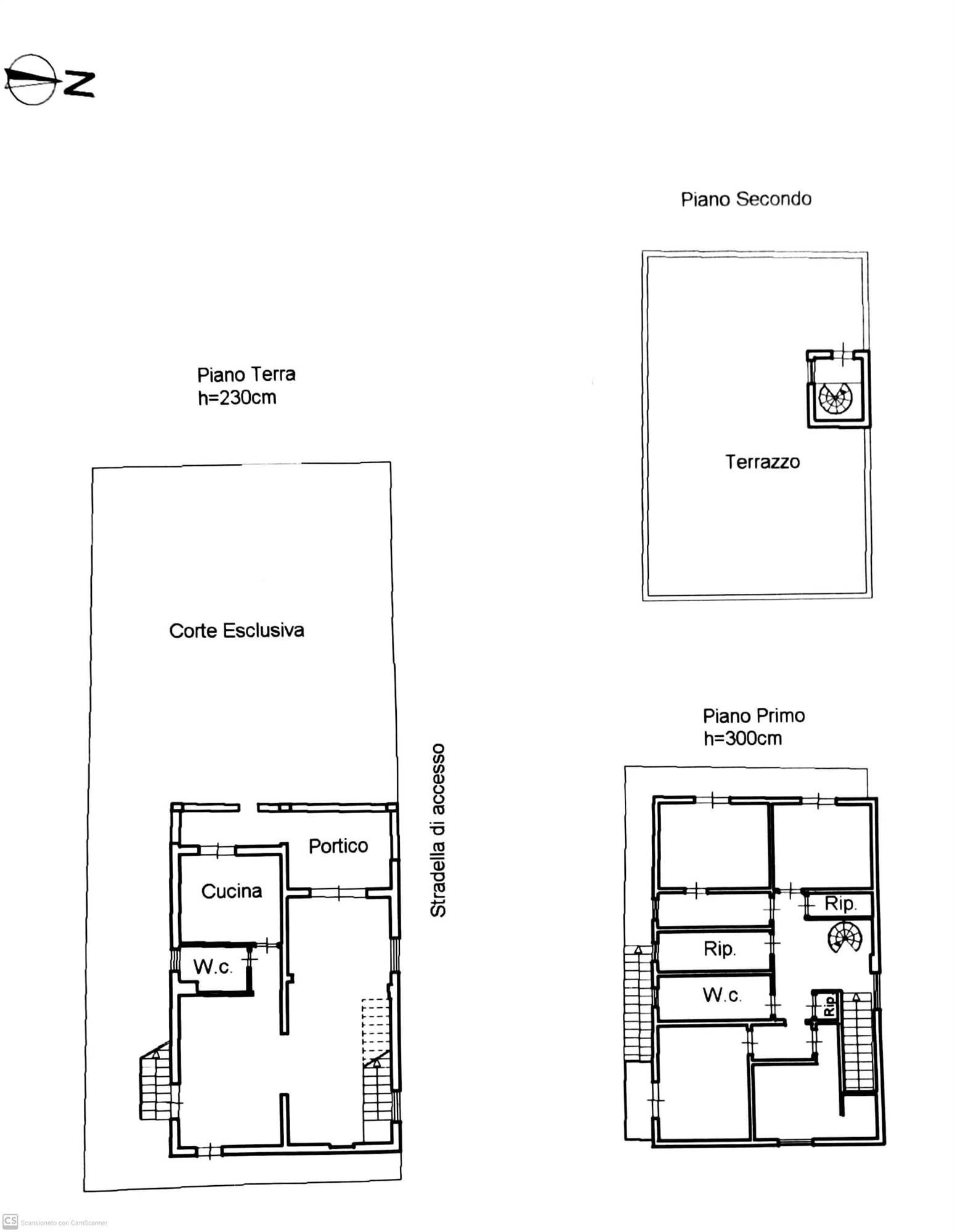
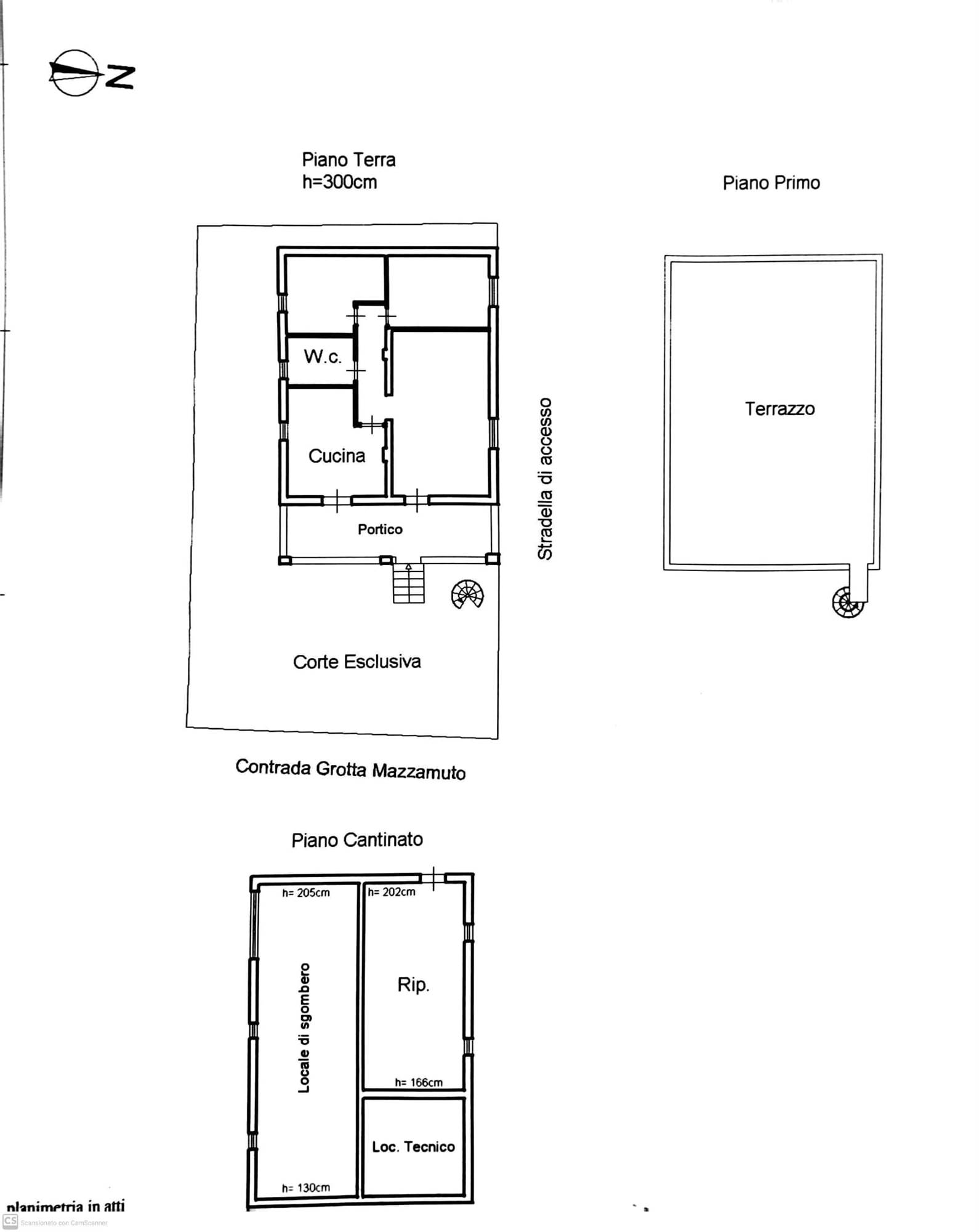
Prima unità: 118 mq commerciali divisi tra piano S1 composto da 3 vani, piano terra con cucina, soggiorno, 2 camere e bagno, piano primo Terrazzo.
Seconda unità: 209 mq commerciali divisi tra piano terra composto da 2 ampi vani e cucina entrambi con apertura su portico, bagno, primo piano con 3 camere matrimoniali, una camera singola, 3 ripostigli, bagno, piano secondo Terrazzo.
E' possibile, tramite professionisti del settore, presso in nostri uffici, effettuare una consulenza finanziaria, assolutamente gratuita e non vincolante, al fine di definire preventivamente la finanziabilità soggettiva.
Per ulteriori informazioni e/o concordare un appuntamento potete contattarci allo 091915142 anche via Whatsapp.
Caratteristiche principali
Codice
AV/67
Città
Altavilla Milicia
Categoria
Villa
Prezzo
88.000 €
Locali
10
Camere
6
Bagni
3
Mq
327
Mq Giardino
700
Balconi
1
Terrazzi
2
Classe energetica
G
Stato Immobile
Da Ristrutturare
Grado
Medio
Posizione
Collina
Orientamento
Nord Ovest Sud Est
Lati Liberi
4
Giardino
Privato
Infissi
Alluminio
Serramenti
Da Sostituire
Persiana
Tapparella PVC
Mappa
Piano Madonna 0, Altavilla Milicia (PA)
Video
Condividi su
Cookie preference