Villa di nuova Costruzione
Villa in vendita • Altavilla Milicia - STRADA SANTORO, SNC
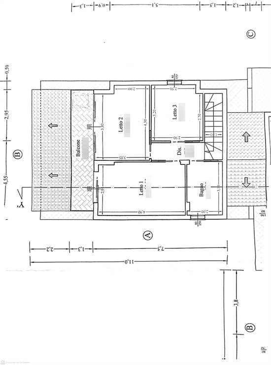
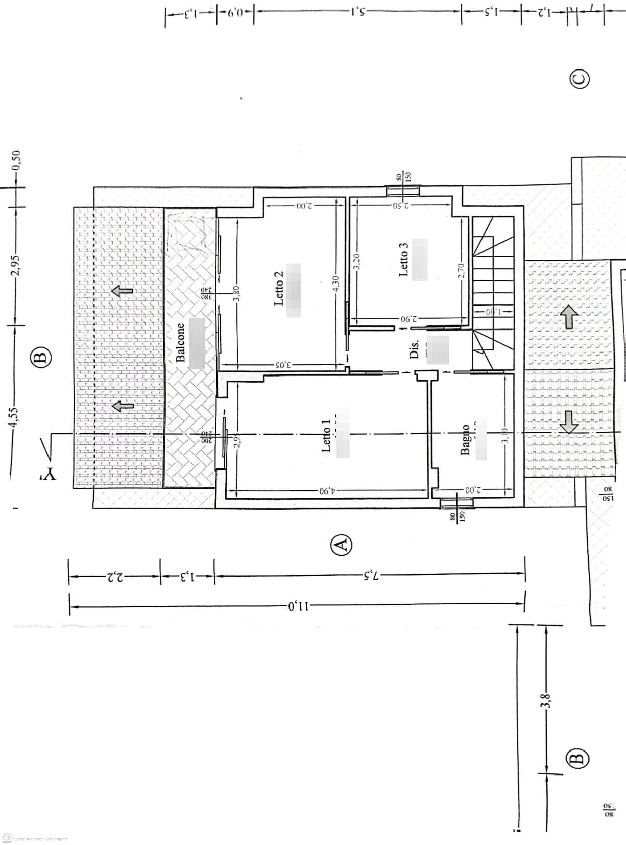
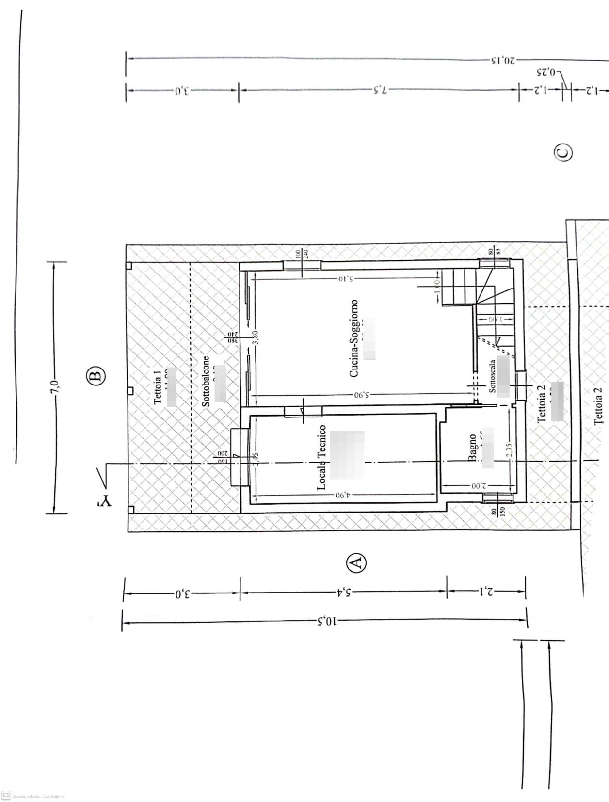
Altavilla Milicia - Strada Santoro - In zona residenziale, nella zona limitrofa al paese, villa singola di 130 mq, in costruzione, su due livelli con 400 mq di spazio esterno. L'immobile è così composto:
Piano Terra- ingresso su ampia zona living di circa 60 mq, bagno con doccia, ripostiglio sottoscala
Tramite una scala in muratura si accede al I° piano composto da una camera matrimoniale con accesso su balcone panoramico, due camere singole, bagno con doccia.
L' unità viene proposta con la formula "Chiavi in mano" e, allo stato attuale, vi è la possibilità di scegliere, insieme all'impresa costruttrice, i materiali di definizione secondo il capitolato, la sistemazione del giardino nonchè l'eventuali predisposizioni al fine di migliorare la classe energetica.
E' possibile, tramite professionisti del settore, presso in nostri uffici, effettuare una consulenza finanziaria, assolutamente gratuita e non vincolante, al fine di definire preventivamente la finanziabilità soggettiva.
Per ulteriori informazioni e/o prenotare un appuntamento potete contattarci allo 091915142 anche via Whatsapp.
Caratteristiche principali
Stato Immobile
In Costruzione
Orientamento
Nord Ovest Sud Est
Mappa
STRADA SANTORO SNC, Altavilla Milicia (PA)
Video