Italiano
English
285.000 €

AMPIO 5 VANI CON 2 POSTI AUTO ZONA FIERA

Appartamento in vendita • Palermo - Via Mariano D'amelio, 46
ZONA FIERA, VIA MARIANO D'AMELIO
In contesto residenziale molto tranquillo e fornito di tutti i comfort; si propone in vendita un appartamento di 165 mq, situato al 2°piano di un edificio residenziale anni '70 dotato di ascensore.
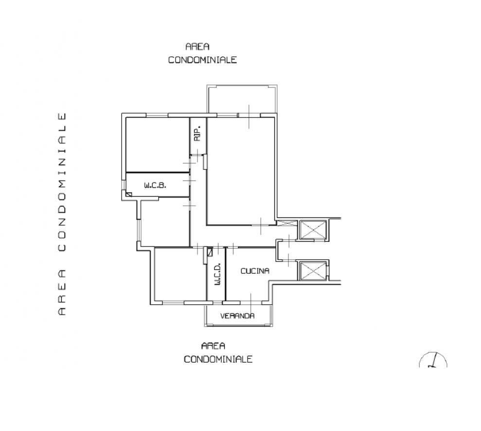
Immobile di comoda quadratura, si sviluppa attraverso cinque locali ben disimpegnati. La proprietà comprende doppio ingresso su disimpegno( e uno in cucina) con armadi a muro, salone con balcone, 3 camere ampie, 2 bagni cucina abitabile con balcone verandato lavanderia e un ripostiglio. Gli ambienti sono caratterizzati da una luminosità naturale che li rende accoglienti e vivibili.
L'immobile si presenta in ottime condizioni con impianti a norma completamente rifatti nel 2017 riscaldamento centralizzato dismesso, doppi vetri camera, climatizzazione.
Di pertinenza dell'immobile due posti auto in area condominiale riservata , uno coperto in un garage condominiale seminterrato e uno scoperto.
ATTUALMENTE LOCATO DISPONIBILE NEI PROSSIMI MESI.
ATTUALMENTE VISIONABILE IL MERCOLEDì POMERIGGIO.

Per qualsiasi informazione o per fissare un appuntamento contattare LINEA CASA STUDIO SCIUTI allo zero nove uno 6264519.
Caratteristiche principali
Codice
5013/S
Città
Palermo
Categoria
Appartamento
Prezzo
285.000 €
Locali
5
Camere
4
Bagni
2
Mq
165
Posti auto
2
Balconi
2
Mq Balcone
10
Piano
2
Classe energetica
F
Stato Immobile
Ottimo
Grado
Medio
Posizione
Centro
Panorama
Vista Aperta
Lati Liberi
3
Giardino
No
Arredi
Non Arredato
Tipo Soggiorno
Doppio
Tipo Cucina
Abitabile
Riscaldamento
Centralizzato
Tipo Riscaldam.
Pompa di Calore
Tipo Impianto
No
Fonte Energetica
Metano
Acqua Calda
Autonoma
Raffrescamento
Split
Infissi
PVC Doppio Vetro
Serramenti
Ottimo
Persiana
Tapparella PVC
Pavim. Giorno
Parquet
Pavim. Notte
Parquet
Pavim. Cucina
Ceramica
Pavim. Bagno
Ceramica
Pavimento
Parquet
Accesso Disabili
Rampa
Accesso interno disabili
Parziale
Isolamento
Non presente
Isolamento termico
Nessuno
Isolamento acustico
Nessuno

Accessori: Aria Condizionata, Armadio a Muro, Ascensore, Doppi Vetri, Lavanderia, Parco Condominiale, Passaggio Automobilistico, Passaggio Pedonale, Porta Blindata, Rete Dati, Ripostiglio, Veranda, Video Citofono, Video Sorveglianza

Mappa
Via Mariano D'amelio 46, Palermo (PA)
Condividi su
Cookie preference