Italiano
English
215.000 €

AMPIO 4 VANI PIANOALTO CON POSTO MOTO

Appartamento in vendita • Palermo (Fiera - Parco Favorita) - Via Don Orione
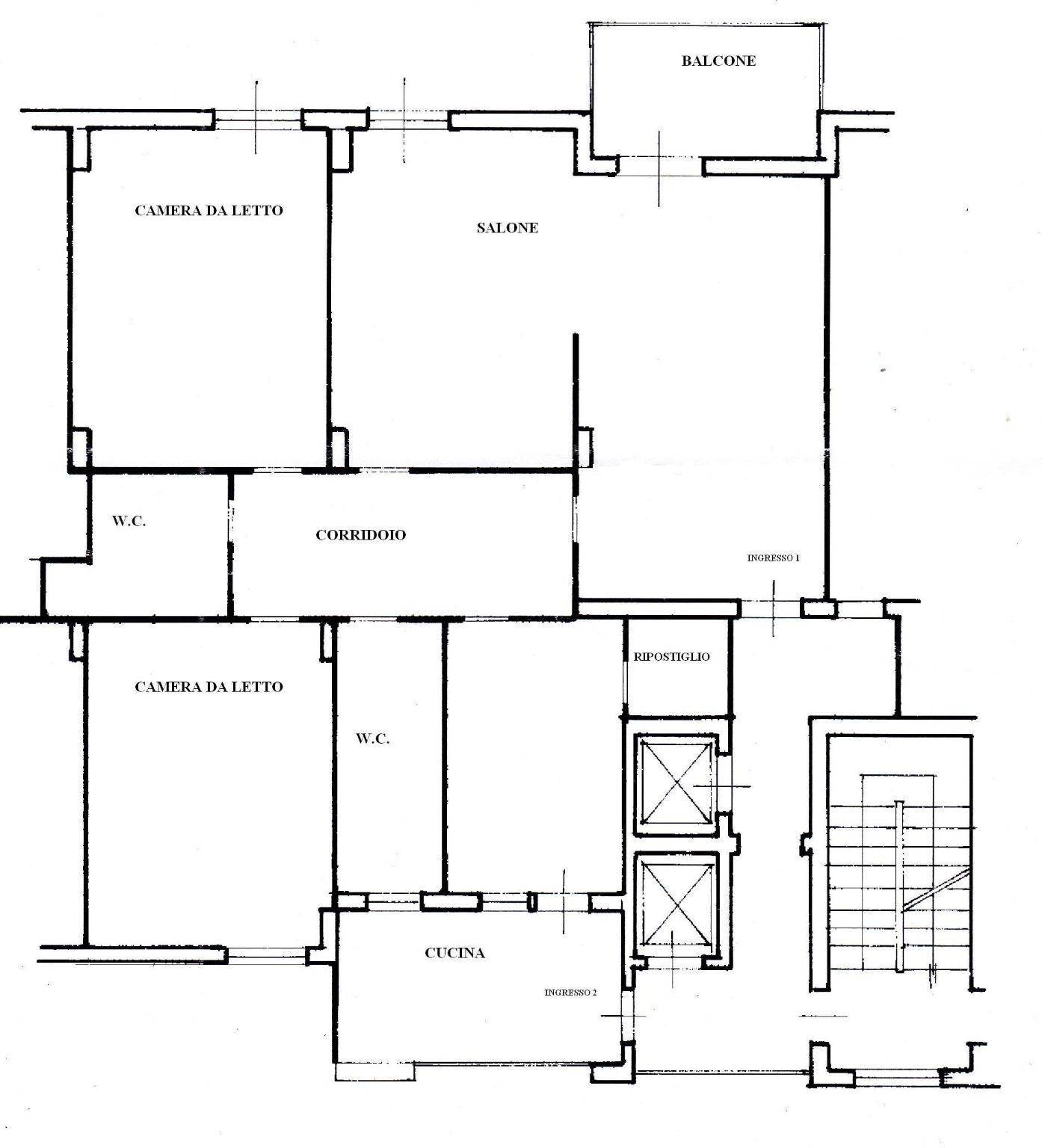
ZONA MONTEPELLEGRINO-FIERA, Precisamente in via Don Orione all'interno di un residence, disponiamo di un ampio 4 vani, luminoso di 135 mq, posto al 5° piano di un edificio signorile dotato di doppio ascensore, servizio di portineria, impianto di videosorveglianza, posto moto .
L'immobile è così disposto: doppio ingresso (salone e cucina), salone doppio con balcone e finestra, cucina abitabile in muratura in veranda, ripostiglio, 2 ampie camere da letto con armadio a muro, altro armadio a muro nel disimpegno. Con parquet e riscaldamento autonomo.
L'immobile è in buone condizioni.

APE G

Per qualsiasi informazione contattare LINEA CASA STUDIO SCIUTI allo zero nove uno 6264519
Caratteristiche principali
Codice
496/S
Città
Palermo (Fiera - Parco Favorita)
Categoria
Appartamento
Prezzo
215.000 €
Spese condominiali
1.080 € / anno
Locali
4
Camere
4
Bagni
2
Mq
135
Balconi
1
Mq Balcone
5
Piano
5
Classe energetica
G
Stato Immobile
Buono
Grado
Medio
Posizione
Centro
Panorama
Vista Aperta
Orientamento
Ovest Est
Lati Liberi
2
Giardino
No
Arredi
Non Arredato
Tipo Soggiorno
Doppio
Tipo Cucina
Abitabile
Riscaldamento
Autonomo
Tipo Riscaldam.
Caldaia
Tipo Impianto
Radiatori
Fonte Energetica
Metano
Acqua Calda
Autonoma
Infissi
Alluminio
Serramenti
Discreto
Persiana
Tapparella PVC
Pavim. Giorno
Parquet
Pavim. Notte
Parquet
Pavim. Cucina
Ceramica
Pavim. Bagno
Ceramica

Accessori: Aria Condizionata, Armadio a Muro, Ascensore, Cassaforte, Lavanderia, Porta Blindata, Portineria/Custode, Rete Dati, Ripostiglio, Veranda, Video Citofono, Video Sorveglianza

Mappa
Via Don Orione , Palermo (PA)
Condividi su
Cookie preference