Italiano
English
11.000 €

Grande locale commerciale

Negozio in affitto • Altavilla Milicia - Via Nicola Calipari, snc
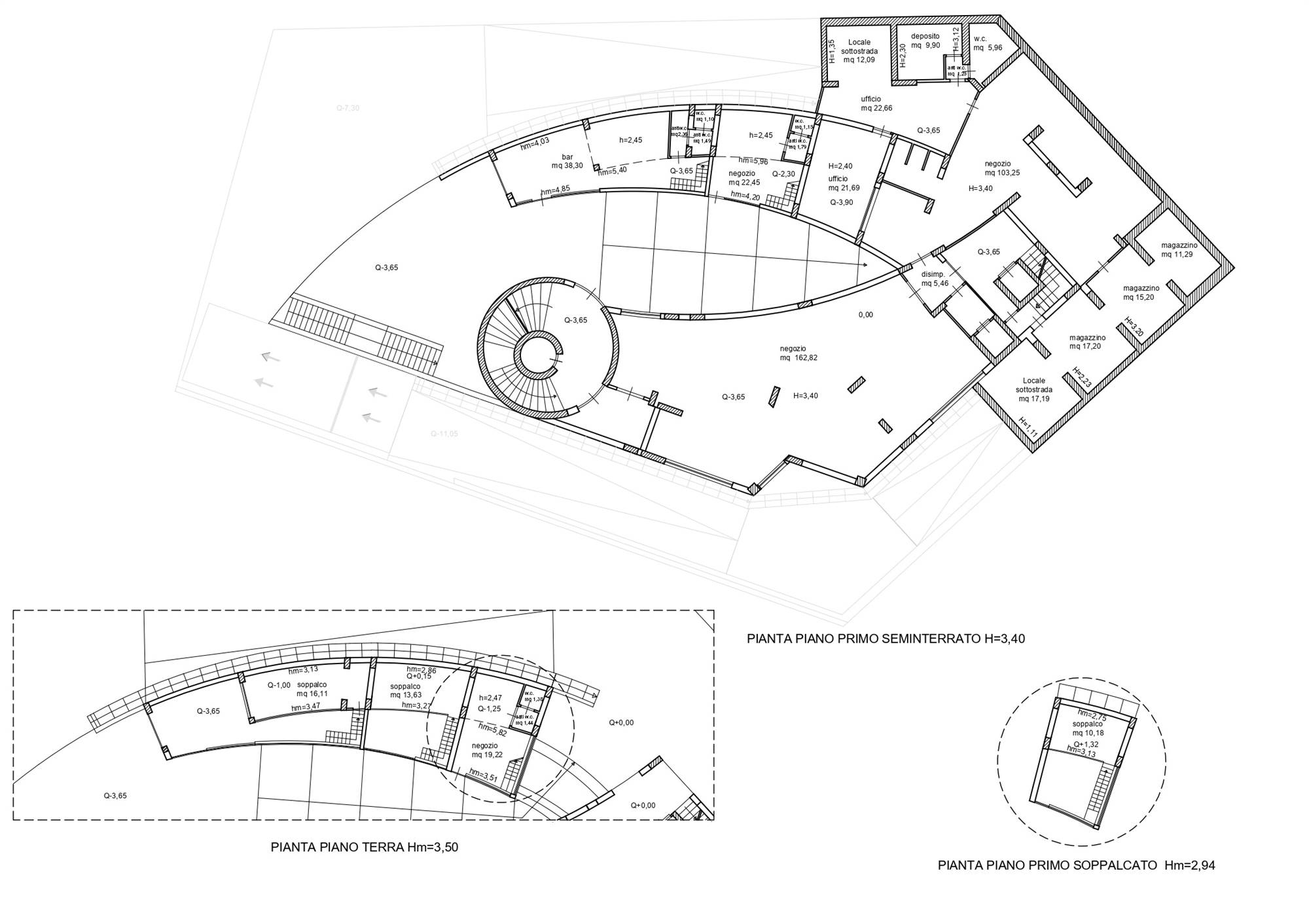
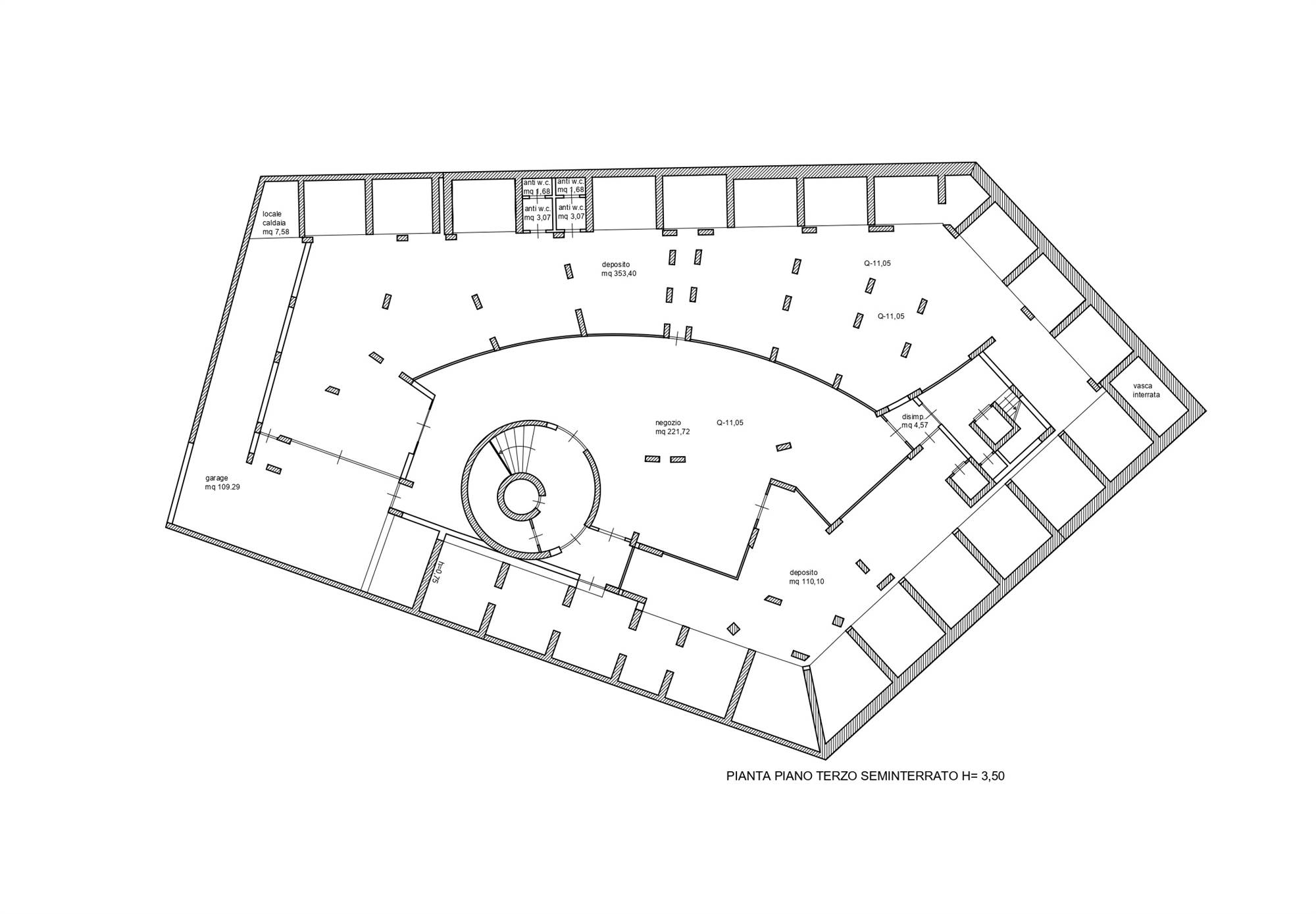
Altavilla Milicia - Via Nicola Calipari - Locale commerciale di grande visibilità, situato all'interno di un centro urbano dinamico e facilmente raggiungibile. L'immobile si sviluppa su 3 elevazioni fuori terra e 2 elevazioni entroterra, garantendo una grande flessibilità d'uso.
Il piano terra è composto da 3 unità commerciali distaccate soppalcate, ideali per esercizi commerciali, servizi o uffici.
Il piano S1 è composto da un grande vano con degli spazi espositivi, dei magazzini, spogliatoi e bagni.
I piani primo e secondo sono al momento destinati alla ristorazione con cucina professionale, sala, bancone bar -ristorazione, bagni e uffici.
Il terzo piano è una terrazza di 315 mq da adibire a dehor durante la stagione estiva.
Per ottimizzare il flusso di lavoro e migliorare l’efficienza del locale tutti e 3 i piani sono serviti dal montacarichi.
Il piano S3, raggiungibile sia dall'esterno, tramite uno scivolo accessibile anche ai mezzi pesanti, che dall'interno tramite 3 ascensori, è composto da un unico grande vano ideale per deposito merci e/o parcheggio, 2 WC e anti-WC, per garantire il comfort degli utenti, un locale tecnico, perfetto per ospitare impianti e attrezzature.
Le caratteristiche dell'Immobile sono:
- Facile raggiungibilità grazie alla posizione centrale
- Grande visibilità e accessibilità per i clienti
- Struttura moderna e funzionale
- Possibilità di personalizzazione degli spazi interni in base alle esigenze del locatario

Il locale commerciale è ideale per una varietà di attività, tra cui:
- Esercizi commerciali di alta gamma
- Uffici e spazi di coworking
- Spazi espositivi e mostre
- Eventi e manifestazioni culturali
- ristorazione
E' possibile locare l'immobile anche parzialmente.
Per ulteriori informazioni e/o prenotare un appuntamento potete contattarci allo 091915142 anche via Whatsapp.
Caratteristiche principali
Codice
AF/25
Città
Altavilla Milicia
Categoria
Negozio
Prezzo
11.000 €
Locali
20
Mq
2200
Classe energetica
C
Stato Immobile
Ottimo
Grado
Signorile
Posizione
Centro
Orientamento
Nord Ovest Sud Est
Lati Liberi
4
Destinazione
Commerciale

Accessori: Antifurto, Aria Condizionata, Ascensore, Bagno Handicap, Doppi Vetri, Porta Blindata

Mappa
Via Nicola Calipari snc, Altavilla Milicia (PA)
Video
Condividi su
Cookie preference