English
Italiano
295,000 €

Entire semi-detached house with sea views

Farmhouse for sale • Trabia - CONTRADA SANT'ONOFRIO, SNC
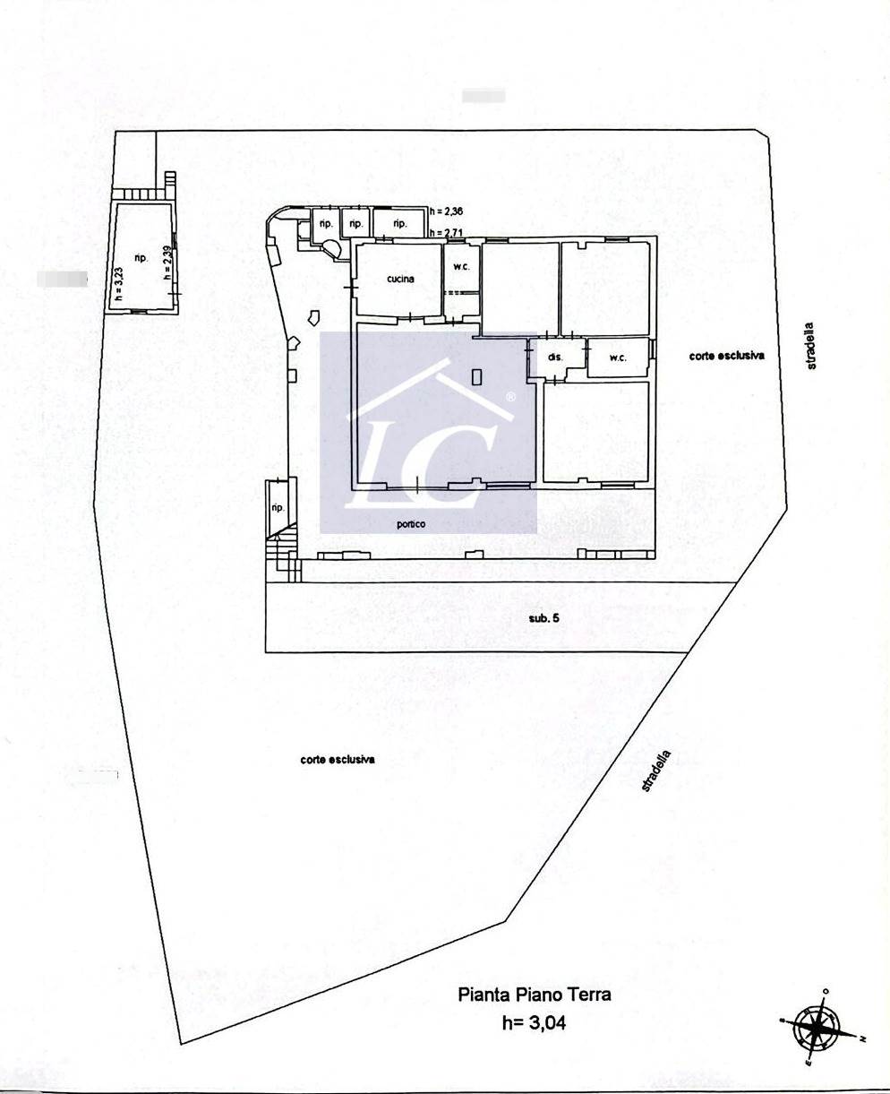
Trabia - Contrada Sant'Onofrio - Inside the Banco di Sicilia residence, 5 km from the characteristic village of San Nicola L'Arena, an entire 300 m2 semi-detached house on a 600 m2 lot consisting of two residential units.
The property currently consists of:
Ground floor apartment - entrance from a corner portico of approximately 40 square meters on a very large living area, attached brick kitchen also with opening onto the portico. From the living area you enter a hallway where we find the sleeping area with three double bedrooms and a bathroom. An external masonry staircase leads to the first floor, which consists of a hallway entrance attached to the living area with a double opening onto the semi-porticoed corner terrace, sea view, two bathrooms and two bedrooms.
The property is in fair condition, partially in need of renovation.
Primal Features
Code
TV/96
City
Trabia
Category
Farmhouse
Price
295,000 €
Expanses
180 € / year
Locals
8
Bedrooms
6
Bathrooms
4
Sqm
300
Sqm garden
600
Terraces
1
Energetic class
F
Property Conditions
Fair Conditions
Rank
Elegant
Position
Hill
View
Sea View
Orientation
North West South East
Free Sides
4
Garden
Private
Type living
Salon
Kitchen
Eat-In Kitchen
Heating
Independent
Heating Type
Boiler
Type of heating system
Radiator heating
Energy source
LPG Heating
Hot Water
Independent
Fixtures
Wooden double glazed
Doors
Good
Blind
Wood Blinds

Accessories: Closet

Map
CONTRADA SANT'ONOFRIO SNC, Trabia (PA)
Video
Share on
Cookie preference