English
Italiano
285,000 €

Single villa under construction

Villa for sale • Altavilla Milicia - Chiesazza 8, snc
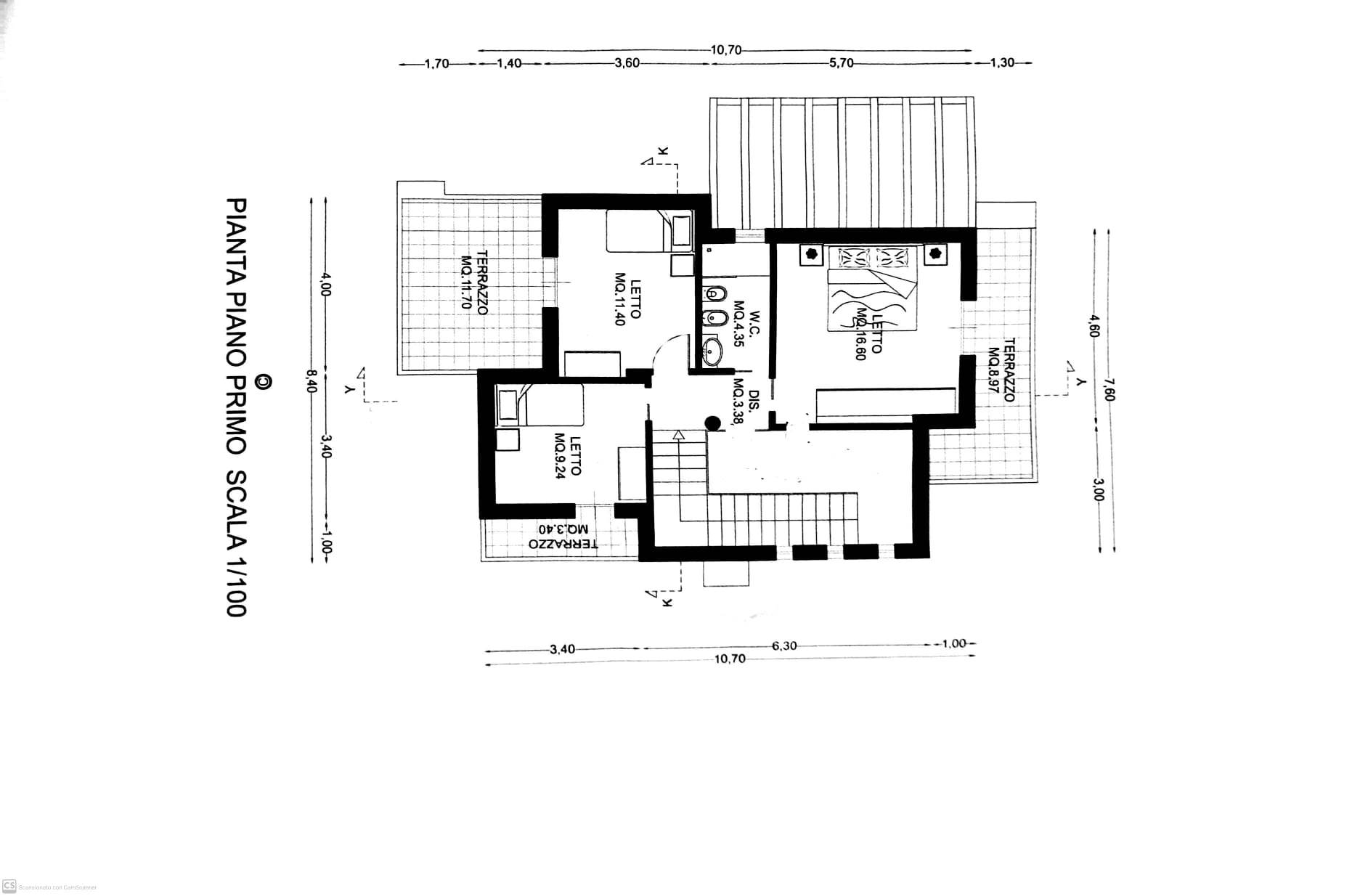
Altavilla Milicia - Chiesazza VIII - In residential area, single villa of 150 sqm commercial, two elevations above ground, on a plot of 600 m 2.
the property is composed on the ground floor by entrance porch in reinforced concrete on kitchen-living room, study, bathroom and closet.
An internal concrete staircase leads to the first floor consisting of a double bedroom with a spacious walk-in closet and French doors on the terrace, two bedrooms also with openings on terraces, bathroom with shower.
The unit is proposed with the formula "Turnkey" and, at present, there is the possibility to choose, together with the manufacturer, the materials of definition according to the specification, the arrangement of the garden as well as any predispositions in order to improve the energy class and possible internal changes according to your needs.
It is possible, through professionals in the field, at our offices, to carry out a financial advice, absolutely free and non-binding, in order to define beforehand the subjective financiability.
For further information and/ or to arrange an appointment you can contact us at 091915142 also via Whatsapp.
Primal Features
Code
AV/59
City
Altavilla Milicia
Category
Villa
Price
285,000 €
Locals
5
Bedrooms
4
Bathrooms
2
Sqm
150
Sqm garden
600
Balconies
2
Terraces
1
Energetic class
C
Property Conditions
Under Construction
Rank
Elegant
Position
Hill
View
Sea View
Orientation
North West South East
Free Sides
4
Garden
Private
Type living
Salon
Kitchen
Eat-In Kitchen
Hot Water
Independent
Map
Chiesazza 8 snc, Altavilla Milicia (PA)
Video
Share on
Cookie preference