English
Italiano
850 € / month

Apartment for rent in Palermo

Apartment for rent • Palermo (Sciuti) - via Giuseppe Pipitone Federico, 127
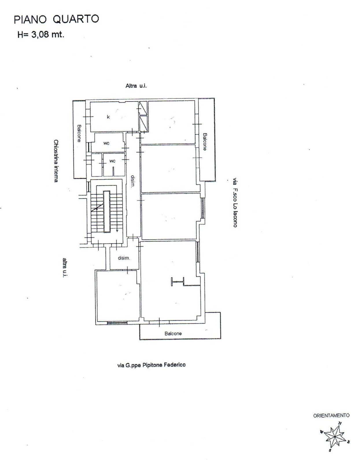
In via Giuseppe Pipitone Federico we have a property as follows: entrance hallway, living room, 4 bedrooms, semi-habitable kitchen, two bathrooms, one with tub and one with shower. Built-in wardrobe with mezzanine.
Bright fourth floor, triple exposure. Excellent context.
Also available for professional studio use.

For any information contact sciuti immobiliare at 0916264519 or via whatsapp at 3920182323.
We inform our customers that our consultants will make the appointments in full compliance with the rules for ours but above all for your health.
We will be happy to accompany you to view the properties equipped with a mask, gloves and shoe protectors, keeping a safety distance of at least one meter and avoiding handshakes. ".
Primal Features
Code
993/S
City
Palermo (Sciuti)
Category
Apartment
Price
850 € / month
Expanses
1,380 € / year
Locals
6
Bedrooms
4
Bathrooms
2
Sqm
180
Balconies
3
Sqm balcon
15
Floor
4
Energetic class
G
Life Style
Quiet
Property Conditions
Good
Rank
Medium
Position
Center
Free Sides
3
Garden
No
Furniture
Not Furnished
Type living
Salon
Kitchen
Small Separate Kitchen
Heating
No
Energy source
Elettric
Hot Water
Independent
Cooling
Split
Fixtures
Wood
Doors
Discreet
Blind
Wood Blinds
Floors Living Room
Little marble
Floors Bedrooms
Little marble
Floors Kitchen
Ceramic
Floors Bathroom
Ceramic
Caution
One Month
Advance Rent
One Month
Type of Contract
3+2 Years
Access for disabled
No
Disabled internal access
Not accessible
Registr. Type
Coupon dry
Insulation
Not present
Thermal insulation
None
Acoustic insulation
None

Accessories: Air Conditioning, Cupboard, Elevator, Optical Fiber, Laundry, Network Data, Closet, Video Surveillance

Map
via Giuseppe Pipitone Federico 127, Palermo (PA)
Share on
Cookie preference